Craftsman Style House Plan - 4 Beds 4.5 Baths 5892 Sq/Ft Plan #454-14 - Houseplans.com
Search
REGISTER LOGIN SAVED No Saved Plans CART  Cart Empty
Don't lose your saved plans! Create an account to access your saves whenever you want. See our Terms & Conditions and Privacy Policy.
OR
Home  >  Style  >  Craftsman

Craftsman House Plan 454-14

Key Specs


Plan Sq Ft

5892
sq ft

Plan Bedrooms

4
Beds

Plan Bathrooms

4.5
Baths

Plan Floors

2
Floors

Plan Garages

2
Garages

Questions? Get Personalized Help
Select Plan Set Options
What's included?
Additional Construction Sets$100.00/each

Additional hard copies of the plan (can be ordered at the time of purchase and within 90 days of the purchase date).

$100.00
$39.00
Subtotal
$8000.00
Best Price Guaranteed

Or order by phone: 1-800-913-2350
Questions? Get Personalized Help
 

 
Hours:
Ready for Your Call 7 Days a Week
Every Day 7 am - 8:30 pm Eastern

See Terms & Conditions and Privacy Policy.

Thanks for your question.

We will be in touch shortly.

Wow!
Cost to Build Reports
$1.99 with Code
CTBFALL (Limit 1)
Our Cost to Build Report gives you a personalized estimate for building your home, based on your location, plan, and materials.

Residential Construction Guide

Learn Building Basics

This downloadable, 26-page guide is full of diagrams and details about plumbing, electrical, and more.

Key Specs


Plan Sq Ft

5892
sq ft

Plan Bedrooms

4
Beds

Plan Bathrooms

4.5
Baths

Plan Floors

2
Floors

Plan Garages

2
Garages

Plan Description


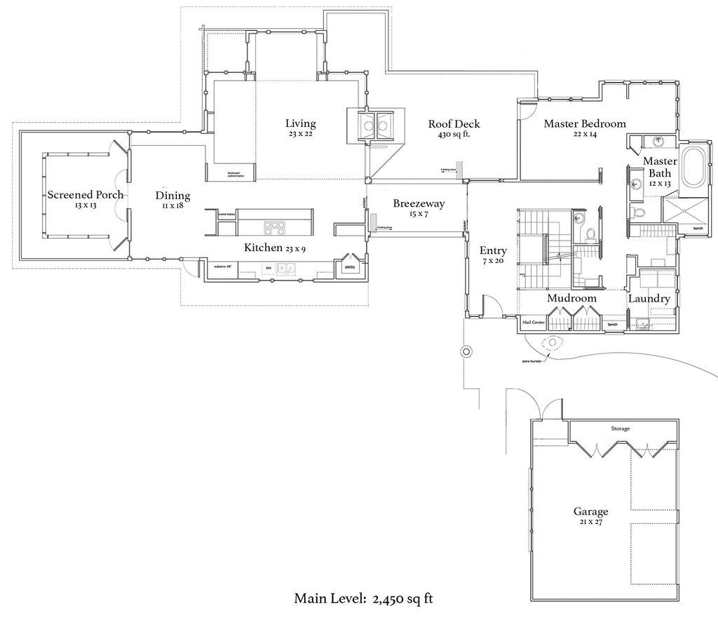
This romantic, nature-inspired, Craftsman-Modern getaway home evokes images of relaxing country vacations and joyful family reunions. Architect Tina Govan and Not So Big House author/architect Sarah Susanka collaborated on the design. The house can be built with main and upper levels only — the upper level converted to house extra bedrooms. The original commission was for a lakeside site. Primary goals were to capture water views, embody the sense of peace and serenity that derives from a rural setting, and make the home work as well for just a few people as for a large extended family. In essence, says, Sarah: "It needed to function as two houses in one." Sarah explains: "A series of connected buildings, with wide eaves, generous porch and breezeway, and many outdoor spaces, offers the opportunity to move effortlessly from inside to out. A series of movable screens allows the house to be completely opened to the outdoors when the weather is appropriate, as well as to open the center breezeway to the terrace and view beyond." The breezeway and roof deck are key features. With folding glass doors on either side, the breezeway walls disappear, seamlessly connecting both sides of the site and framing vistas through the house. From the front patio, you can walk straight out to the roof deck with expansive views on all sides. This outdoor living room-with-fireplace is embedded in the body of the house and is accessible from the major rooms. Note the beautiful interior woodwork. The floor plan has interesting combined spaces deftly handled: Rec. Room/ TV Area / Office, Kitchen / Living / Dining. The roof deck brckons. The Master bedroom has wonderful windows and accesses the main deck rather than a “vestigial” master deck that does not get used. View more Craftsman style house plans

This plan can be customized!

Tell us about your desired changes so we can prepare an estimate for the design service. Click the button to submit your request for pricing, or call 1-800-913-2350.

Floor Plans


Floor Plan - Main Floor

houseplans LOGO

BUILDER Advantage Program

PRO BUILDERS

Join the club and save 5% on your first order.
PLUS download exclusive discounts and more.

LEARN MORE

Floor Plan - Upper Floor

Floor Plan - Lower Floor

Full Specs & Features


Basic Features

Bedrooms : 4
Baths : 4.5
Stories: 2
Garages: 2

Dimension

Depth : 77' 2"
Height : 23'
Width : 99' 2"

Area

Total : 5892 sq/ft
Decks : 430 sq/ft
Garage : 595 sq/ft
Lower Floor : 2602 sq/ft
Main Floor : 2450 sq/ft
Upper Floor : 840 sq/ft
* Total Square Footage typically only includes conditioned space and does not include garages, porches, bonus rooms, or decks.

Ceiling

Lower Ceiling : 8' 6"
Main Ceiling : 9'
Upper Ceiling Ft : 9'

Roof

Primary Pitch : 8:12
Roof Framing : Stick
Roof Type : Gable

Exterior Wall Framing

Exterior Wall Finish : T&G Siding, Stone, Shake Siding
Framing : 2x6

Bedroom Features

2 Master Suites
Main Floor Bedrooms
Split Bedrooms
Walk In Closet

Kitchen Features

Breakfast Nook
Walk In Pantry Cabinet Pantry

Additional Room Features

Den Office Study Computer
Great Room Living Room
Hobby Rec Room Game Room
Main Floor Laundry
Master Sitting Area
Mud Room
Storage Area
Sunroom

Garage Features

Detached Garage
Side Entry Garage

Lot Characteristics

Suited For Sloping Lot

Outdoor Spaces

Breezeway
Grill Deck Sundeck
Screened Porch

More

Suited For Vacation Home

What's included in this plan set


See a sample plan set

All plans are drawn at ¼” scale or larger and include :

  • Foundation Plan: This page shows all necessary notations and dimensions including support columns, walls, and excavated/unexcavated areas.
  • Exterior Elevations: Views of the home from all four sides showing exterior materials and measurements.
  • Floor Plan(s): Detailed plans for each level showing room dimensions, wall partitions, windows and doors, etc.
  • Cross Section: A slice of the home from roof to foundation, showing important details like stairs and wall construction.
  • Overhead Roof Plan(s): A view of the home from above showing roof pitch, peaks, valleys, and other details.
  • Construction Notes and Details: Shows the builder how things come together, like walls, the chimney, insulation, and more.
* See important information before purchasing

Pricing


Plan Options

5 Copy Set

$8000.00
5 printed plan sets mailed to you.

CAD Set

$8000.00
For use by design professionals to make substantial changes to your house plan and inexpensive local printing.

Reproducible Set

$8000.00
For inexpensive local printing / making minor adjustments by hand. 1 printed set, typically on Bond paper.

Foundation Options

Daylight Basement

$0.00
Ideal for sloping lot, lower level of home partially underground.

*Options with a fee may take time to prepare. Please call to confirm.

Additional Options

Additional Construction Sets

$100.00
Additional hard copies of the plan (can be ordered at the time of purchase and within 90 days of the purchase date).

Audio Video Design

$100.00
Receive an overlay sheet with suggested placement of audio and video components.

Construction Guide

$39.00
Educate yourself about basic building ideas with these four detailed diagrams that discuss electrical, plumbing, mechanical, and structural topics.

*Options with a fee may take time to prepare. Please call to confirm.

Unless you buy an “unlimited” plan set or a multi-use license you may only build one home from a set of plans. Please call to verify if you intend to build more than once. Plan licenses are non-transferable and cannot be resold.

Meet the Designer

Sarah Susanka Architect

Sarah Susanka Architect - Houseplans.com
“'Not So Big®' puts the emphasis on quality rather than quantity and is designed to fit the way we really live today. It's a message that's being embraced now more than ever, and it's wonderful to see so many people come to the realization that a house doesn't have to be bigger to be better.” Award-winning architect and best selling author Sarah Susanka is the J K Rowling of home design. She has brought her practical, less-can-be-more brand of magic to the world of architectural home plans. A member of the College of Fellows of the American Institute of Architects and a Senior Fellow of the Design Futures Council, Sarah was born in Kent, England and lives in North Carolina. Hailed as an innovator by Fast Company, Newsweek, and US News and World Report, she received the Anne Morrow Lindbergh Award from the Lindbergh Foundation for outstanding individual achievement, and Builder Magazine honored Sarah as one of their 30 Top Innovators who have changed the face of residential construction. Sarah Susanka's influential books include The Not So Big House (Taunton, 1999), Home By Design (Taunton, 2004), The Not So Big Life: Making Room for What Really Matters (Random House, 2007), and Not So Big Remodeling (Taunton, 2009). She has lectured widely and appeared on numerous television and radio programs including Oprah, Charlie Rose, and Diane Rehm. She is showing a new generation of homeowners, builders, and developers how to "build better not bigger."

Browse Similar Plans

Need help? Let our friendly experts help you find the perfect plan!

Contact us now for a free consultation.

Coupon Codes