How to Read a Floor Plan with Dimensions - Houseplans Blog - Houseplans.com
Search
REGISTER LOGIN SAVED No Saved Plans CART  Cart Empty
Houseplans Blog

How to Read a Floor Plan with Dimensions

Reading a floor plan is easy with this handy blog.

When we plan to build a new home, the floor plan is a treasure map, written in a symbolic language and promising the fulfillment of a dream. When we “read” a floor plan with dimensions we imagine the simple lines and arc’s stretching into walls, doors and windows, we imagine ourselves in a “home,” and we wonder how the spaces will feel both empty and filled with life (check out these floor plan trends from Builder Online). But the language of floor plans can be subtle. Experienced designers, builders, and home enthusiasts are regularly surprised by how different a finished home feels from what they imagined.

Click here to explore our collection of best-selling floor plans.

How to Read a Floor Plan with Dimensions How to Read a Floor Plan with Dimensions How to Read a Floor Plan with Dimensions Plan 888-13 (above) is a modern farmhouse style floor plan that is reminiscent of a dairy barn and employs traditional elements interpreted in a modern way.

What is a floor plan?

Floor plans used to be called “blueprints.” They came in a roll and included all of the details required to build (or change) a home. Today, they still contain “building instructions” in the form of multiple pages of drawings, but most house plan are delivered as digital files and can be viewed on a screen or printed out onto regular paper for review, to get bids, or to submit for permits.

A plan “set” is the collection of all of the various individual pages that describe the house. Plan sets usually include: a site plan, building notes, floor plans for each level of the house, framing and roofing plans, electrical plans, plans for the mechanical systems, and construction details.

A “Floor Plan” refers to the map of an individual floor. The simplest way to understand a floor plan is to imagine looking down on a doll house without its roof.

“Design drawings” are floor plans that include a modest amount of information and are created to communicate a home design to non-professionals. “Working drawings” or “construction drawings” contain much more information: they are used to build the home. For the most part, this article refers to design drawings.

Learn: 6 Steps to Building a Custom Home (from NewHomeSource)

Walls, Windows, and Doors - Plan Symbols and Features

The walls are the strongest visual elements in a floor plan. Walls are represented by parallel lines and may be solid or filled with a pattern. Breaks in walls indicate doors, windows and openings between rooms.

How to Read a Floor Plan with Dimensions How to Read a Floor Plan with Dimensions How to Read a Floor Plan with Dimensions Plan 497-21 (above) features floor plan details showing doors, walls and windows.

You can see in the drawing below that door floor plans are drawn as thin rectangles and may include an arc to indicate the swing direction. Pocket door floor plans are drawn as thin rectangles that disappear into walls. The increasingly popular sliding or “barn” doors (for barn door ideas, HGTV has got you covered) are drawn partially open alongside a wall. Windows are breaks in walls crossed by thin lines showing the glass and the frame. Swinging windows (casements) may show a line or an arc to indicate the direction that the window opens.

Stairs

Stairs are drawn as a series of rectangles (usually with a direction arrow indicating whether the stairs travel up to the next higher floor or down). Where the stair rises three feet above the floor it is cut with a diagonal line. Stairs above the “cut line” are shown with dashed lines.

How to Read a Floor Plan with Dimensions How to Read a Floor Plan with Dimensions Plan 888-1 features stair detail next to the study.

Furniture, Fixtures, Fittings, and Finishes

Most floor plans show the location of sinks, toilets, and other critical fixtures. Skilled designers focus intently on locating kitchen and bath fixtures because they know that precise layout matters. The placement of a refrigerator in relation to the sink, oven and range can determine if a kitchen is comfortable or awkward. Similarly, a toilet placed too close to a vanity makes a bathroom difficult to use comfortably.

Key fixtures and appliances are pretty easy to spot.

Designers may include flooring materials in their floor plans to provide scale and help the viewer imagine how a room will feel.

Open to Below

Many new homes have entryways and “great rooms” with extra high ceilings. The lower floor may show the ceiling height numerically with a dashed line indicating the perimeter of the taller space. From the second floor the plans will include a note that a space does not have a floor but is “open to below,” as shown here.

How to Read a Floor Plan with Dimensions How to Read a Floor Plan with Dimensions How to Read a Floor Plan with Dimensions Plan 137-252 boasts an “open to below” detail on the second level.

Measurements - Size and Width, Furniture and Use

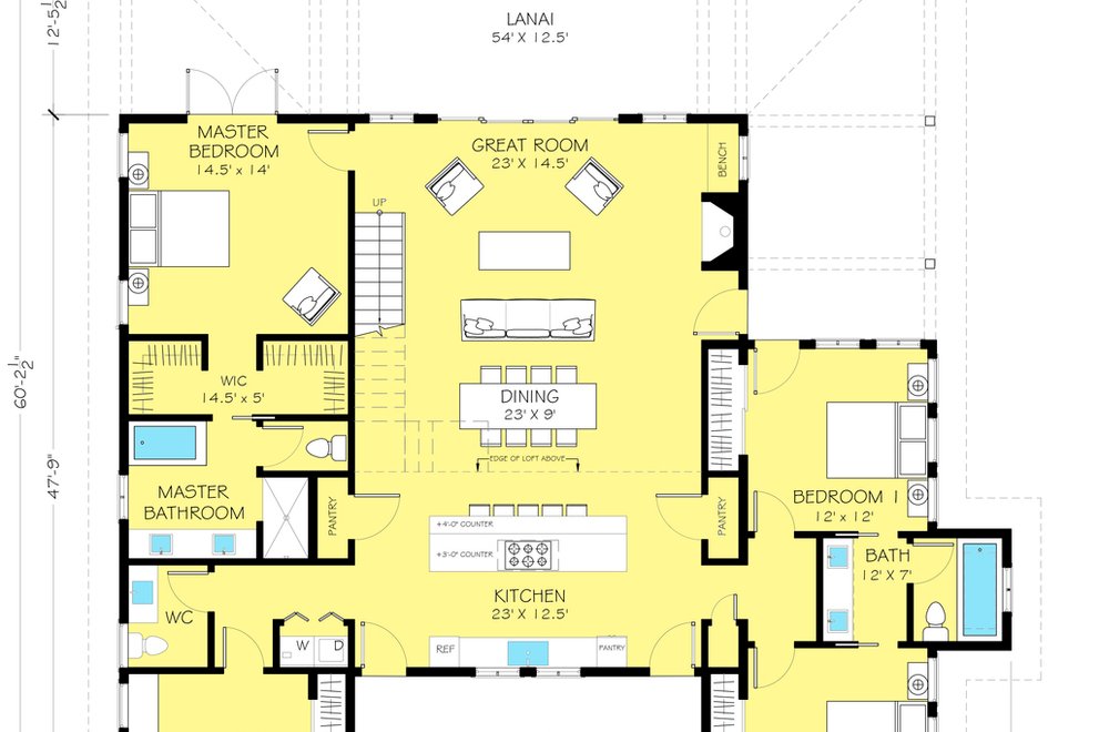
More detailed floor plans with dimensions include “dimension strings” to locate windows, doors, walls and other architectural elements. Dimension strings are drawn parallel to the element with 45º “hash marks” at each end of the dimension string indicating where the measurement starts and ends.

Design drawings typically only include individual room dimensions and occasionally measurements for the length and width of the whole house.

Architects may include furniture to help you imagine how a space might be furnished. The experience of the plan is enriched by imagining yourself in the house, lying in bed and looking out your new French doors or sitting on a comfortable sofa sharing a drink with friends. Picturing yourself in the plan makes evaluating a design less abstract and can help you avoid creating rooms and spaces that do not work. Be careful to ensure that any existing furniture that you plan to re-use has similar dimensions to the models in the design (here are some tips on incorporating existing furniture into a new space from Freshome). The success of a room can be determined by just a few inches.

How to Read a Floor Plan with Dimensions How to Read a Floor Plan with Dimensions Plan 928-329 sports floor plan dimensions with a furnishing layout.

Volume and Light

Size, width and furniture placement are not the only variables impacting a room’s success. Volume can be just as important. Until recently, most homes were built with 8’ tall ceilings but taller ceilings are growing in popularity. By combining “open plans” where rooms flow seamlessly from one to the next with higher ceilings, smaller plans can be made to feel surprisingly comfortable. Conversely, a large room with a low ceiling will feel cramped despite the ample square footage.

Another strategy used to make smaller rooms feel bigger is to include more and larger windows. Consider the placement of windows for view, balanced light, and heat and make sure you understand the size and type of windows proposed.

How to Read a Floor Plan with Dimensions How to Read a Floor Plan with Dimensions Plan 430-156 sports high ceilings and large windows that make the home feel spacious and bright.

Experiencing the Plan

A little preparation can go a long way toward evaluating floor plans. Start by creating a list of common and high-importance events and experiences. These might include: Walking in the front door for the first time. Lying in bed at night or waking up in the morning, getting dressed and ready for your day or to go out at night, preparing food daily and with friends, doing laundry and other chores, hanging out with the family reading, playing games, watching TV, entertaining a small group, throwing a big party.

Imagine how the plan will feel and work when you are doing the things that define your life. When planning your dream home, there is a tendency to value the unusual occurrences (greeting important guests at the entry, hosting a wedding dinner…) and less about regular daily use (taking off muddy boots, paying the bills). A truly successful home feels great every day. Think clearly about what your current (and past) house did well, not just where it falls short. A new house can add what is missing while providing many or all of the experiences that you appreciate in your current house.

In Conclusion

Many of us dream of building a new home or changing an existing house to make it truly “ours.” With a bit of practice the secret language of architectural plans will become clear and the surprises that sometimes come from misunderstanding plans will be replaced by the joy of seeing a personal, imagined experience become real.

When reviewing prospective contractors' reference projects, ask if you can review the plans and see how the space compares. Carry a tape measure and note the dimensions of rooms that “work” and those that feel wrong. Pay attention to the placement of windows for light and views. It is fun and with a little practice you will be able to “read” a floor plan like a pro.

Explore best-selling floor plans here.

How to Read a Floor Plan with Dimensions Inspiration

Coupon Codes